Aceasta proprietate a fost deja vanduta! Pentru oferte similare contactati agentul






Camere
3
Suprafata utila
73 mp
Suprafata construita
81 mp
Etaj
Etaj 1
Bai
2
- ID:P8953
- Nr. camere:3
- Nr. dormitoare:2
- S. utila:73.00 mp
- S. balcoane:8.00 mp
- S. utila totala:81.00 mp
- S. construita:81.00 mp
- Comp.:Semidecomandat
- Confort:1
- Etaj:Etaj 1
- Nr. bucatarii:1
- Nr. bai:2
- Nr. balcoane:1
- Structura:Caramida
- Tip imobil:Bloc
- Regim inaltime:S+P+5
- Orientare:Sud-Est
- Clasa energetica:A
Descriere
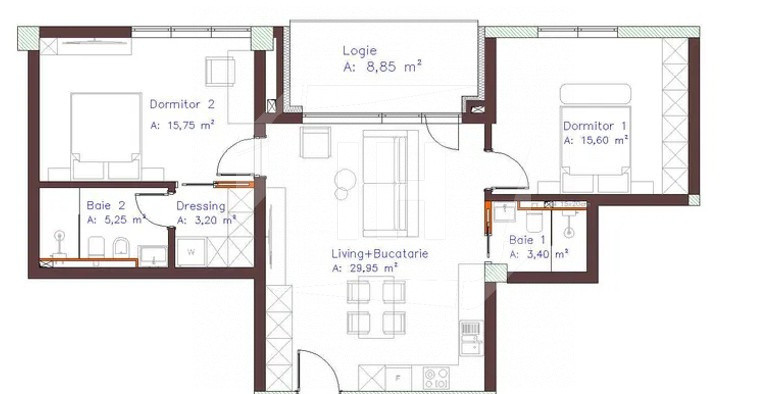
- apartament cu 3 camere situat in zona centrala a orasului. Apartamentul este amplasat la etajul 1 al unui imobil cu 5 niveluri si dispune de o suprafata utila de 73 mp si terasa de 8 mp. Compartimentarea proprietatii este semidecomandata, fiind organizata astfel: 2 dormitoare, living cu bucatarie open space, 2 bai si hol. Apartamentul se preda la stadiul de semifinisat.
Pretul nu include TVA! Optional poate fi achizitionat 1 loc de parcare subteran la pretul de 12000 euro+ TVA.
Citeste mai mult
Pretul nu include TVA! Optional poate fi achizitionat 1 loc de parcare subteran la pretul de 12000 euro+ TVA.
Specificatii
Curent
Apa
Canalizare
Gaz
Curent trifazic
CATV
Telefon
Acces internet
Fibra optica
Centrala imobil
Incalzire pardoseala
Bloc izolat termic
Ferestre Termopan
Usa intrare Metal
Bucatarie Nemobilata
Bucatarie Neutilata
Apometre
Contor caldura
Contor gaz
Nemobilat
Interfon
Videointerfon
Lift
Spatii agrement
Curte
Curte comuna
Bogdan .
0783003300
Esti interesat de aceasta proprietate ?