





Camere
5
Suprafata utila
140 mp
Suprafata construita
180 mp
Bai
3
An constructie
2025
- ID:P10992
- Nr. camere:5
- Nr. dormitoare:3
- S. utila:140.00 mp
- S. construita:180.00 mp
- S. teren:1100.00 mp
- Nr. bucatarii:1
- Nr. bai:3
- Nr. parcari:2
- An constructie:2025
- Structura rezistenta:Caramida
- Regim inaltime:P+1
- Orientare:Sud-Est
- Clasa energetica:B
Descriere
De vanzare casa individuala situata in zona Salicea cu o pozitie foarte frumoasa aproape de natura dar si cu acces din strada asfaltata. Are suprafata utila de 140 mp si 1.100 mp teren si este o casa foarte luminoasa fiind orientata Sudic.
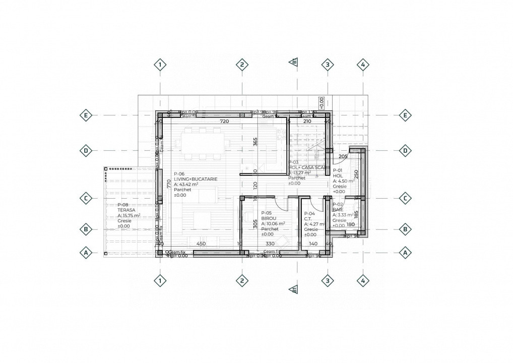
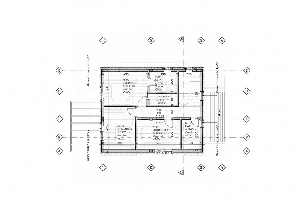
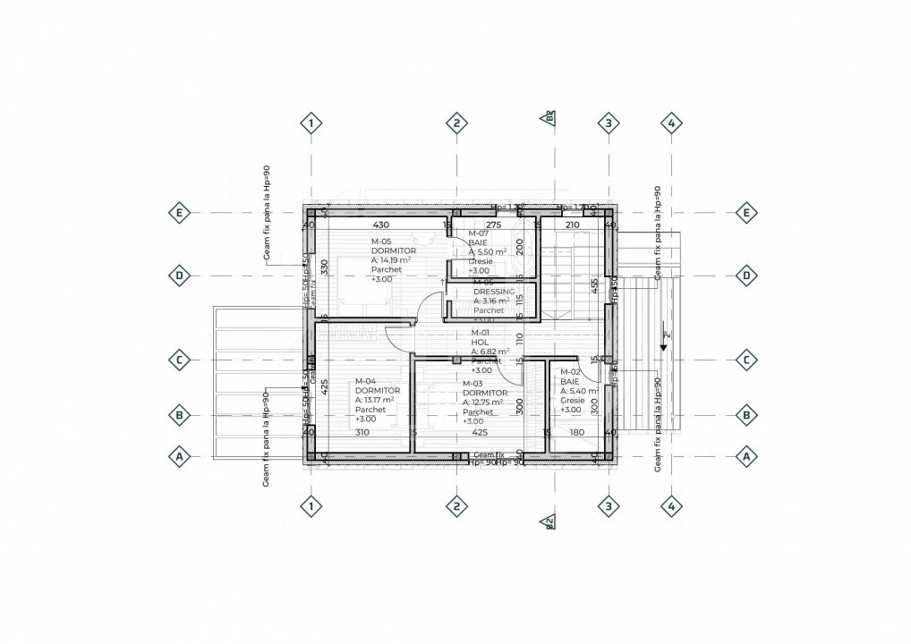
Compartimentarea este in felul urmator:
- la parter: bucatarie cu living, birou, baie, casa scarii, hol si camera tehnica.
- la etaj: 3 dormitoare, 2 bai si un dressing.
Casa se vinde la stadiul semifinisat si beneficiaza de urmatoarele: Incalzire in pardoseala cu pompa de caldura, curent electric, apa si fosa septica.
Casa este ridicata pana la al 2-lea nivel si se va preda la stadiul semifinisat in primavara 2026.
Citeste mai mult
Compartimentarea este in felul urmator:
- la parter: bucatarie cu living, birou, baie, casa scarii, hol si camera tehnica.
- la etaj: 3 dormitoare, 2 bai si un dressing.
Casa se vinde la stadiul semifinisat si beneficiaza de urmatoarele: Incalzire in pardoseala cu pompa de caldura, curent electric, apa si fosa septica.
Casa este ridicata pana la al 2-lea nivel si se va preda la stadiul semifinisat in primavara 2026.
Specificatii
Curent
Apa
Fosa septica
Fibra optica
Incalzire pardoseala
Izolatie Exterior
Ferestre PVC
Usa intrare PVC
Usa interior Celulare
Dressing
Apometre
Nemobilat
Calin .
0783003300
Esti interesat de aceasta proprietate ?