


Camere
1
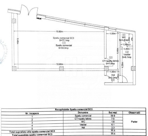
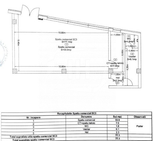
Suprafata utila
77.20 mp
Suprafata construita
98 mp
An constructie
2024
- ID:P11702
- Nr. camere:1
- S. utila:77.20 mp
- S. construita:98.00 mp
- S. vitrina:10.00 m
- Front stradal:20.00 m
- Comp.:Compartimentat
- Nr. bai:1
- An constructie:2024
- Structura rezistenta:Beton
- Tip imobil:Bloc
- Regim inaltime:P+5
Descriere
Oferim spre vanzare un spatiu comercial in cartierul Dambul Rotund, aproape de Taietura Turcului si Fabrica de Sport..
-incapere mare, se poate delimita cu ziduri tip rigips
-grup sanitar
-vestiar
-cca 77 mp utili
-acces stradal
-vitrina spre strada
-statie de autobuz si tramvai in fata blocului
Recomandarea noastra: un spatiu ideal pentru un cabinet, salon, birouri, gradinita, showroom, clinica, sala fitness etc
Pretul nu contine TVA deductibil!
Posibilitate parcari!
Citeste mai mult
-incapere mare, se poate delimita cu ziduri tip rigips
-grup sanitar
-vestiar
-cca 77 mp utili
-acces stradal
-vitrina spre strada
-statie de autobuz si tramvai in fata blocului
Recomandarea noastra: un spatiu ideal pentru un cabinet, salon, birouri, gradinita, showroom, clinica, sala fitness etc
Pretul nu contine TVA deductibil!
Posibilitate parcari!
Specificatii
Curent
Apa
Canalizare
Gaz
Telefon
Acces internet
Fibra optica
Utilitati in zona
Centrala imobil
Incalzire pardoseala
Izolatie Exterior
Bloc izolat termic
Vopsea lavabila
Faianta
Gresie
Ferestre PVC
Lampi
Lumina naturala
Apometre
Contor gaz
Nemobilat
Interfon
Lift
Spatii agrement
Curte
Curte comuna
Control electric individual
Administrare
Curatenie
Supraveghere video
Ingrijire spatii verzi
Curatenie parcare
Bogdan .
0783003300
Esti interesat de aceasta proprietate ?